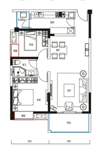
河畔新世界2室2厅1卫1厨

河畔新世界2室2厅1卫1厨

商铺  小两房小户型南北通透

购房优惠

  • 报名看房

    预约看房


    已有100人报名

分享

团购预约

预约成功将短信告知

看房预约

报名成功将短信告知